Appartamento con 6 locali in vendita in Roma Roma

1.250.000 €

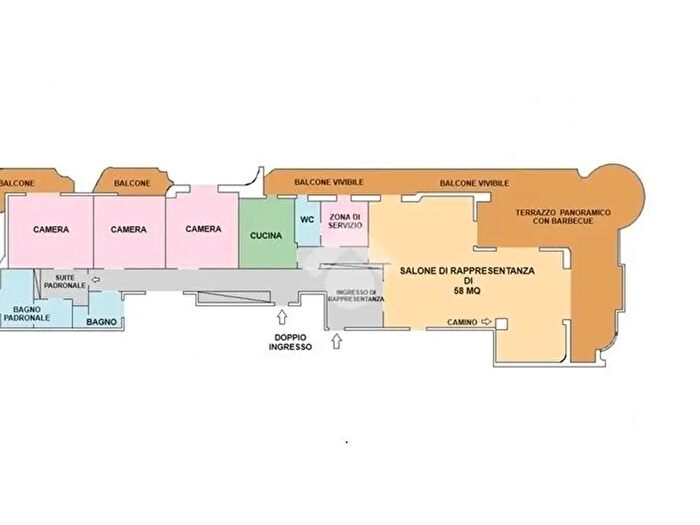
  • 190 m²
  • 3 bagni
  • 6 locali

Informazioni e dettagli

Stato In vendita
Tipo di abitazione Appartamento
Prezzo 1.250.000 €
Area 190 m²
Locali 6
Bagni 3
Paese Italia
Area Roma
Zona/Frazione Salario, Trieste
Quartiere Africano - Villa Chigi
Indirizzo Roma

Caratteristiche principali

  • Cucina
  • Giardino
  • Posto auto

Dettagli dell'abitazione

Ci sono case belle. E poi ci sono case che raccontano qualcosa di unico, ancor prima di entrarci. In un palazzo dal carattere architettonico raro, riconoscibile per le sue linee particolari con fin...

Calcolatrice di Mutuo Ipotecario

%