Casa quadrilocale in vendita in Viale delle Rose - Terracina Viale delle Rose, Terracina

350.000 €

  • 86 m²
  • 1 bagno
  • 4 locali

Informazioni e dettagli

Stato In vendita
Tipo di abitazione Casa
Prezzo 350.000 €
Area 86 m²
Prezzo al m² 4.069,76 €/m²
Locali 4
Bagni 1
Paese Italia
Area Monti Aurunci, Ponza, Ventotene
Zona/Frazione Litoranea Terracina - San Felice
Indirizzo Viale delle Rose, Terracina

Caratteristiche principali

  • Cucina
  • Giardino

Dettagli dell'abitazione

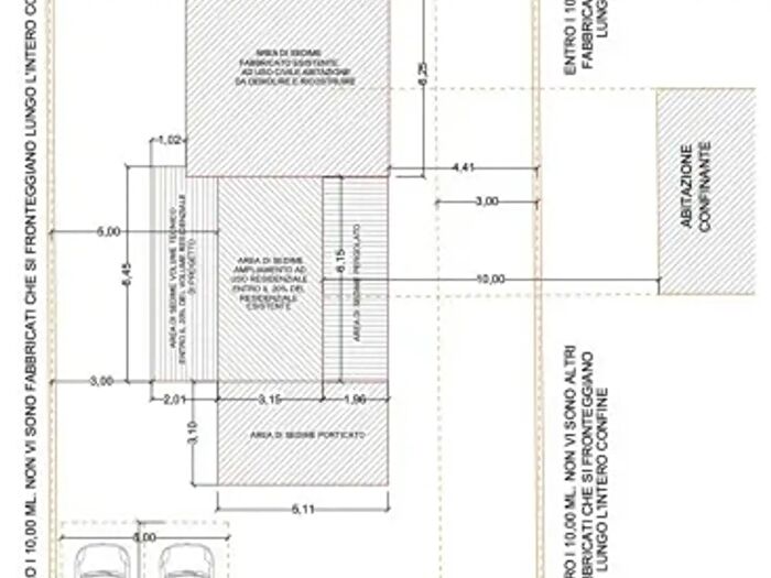
Location: Terracina (LT)Indirizzo: Viale delle Rose - Baia d'UlisseTipologia: Villa da realizzare - con progetto approvato ed oneri già versatiDescrizione:Proponiamo in vendita una villa indipenden...

Calcolatrice di Mutuo Ipotecario

%