Appartamento bilocale in vendita in Via della Farnesina - Roma Via della Farnesina, Roma

278.000 €

  • 85 m²
  • 1 bagno
  • 2 locali

Informazioni e dettagli

Stato In vendita
Tipo di abitazione Appartamento
Prezzo 278.000 €
Area 85 m²
Prezzo al m² 3.270,58 €/m²
Locali 2
Bagni 1
Paese Italia
Area Prenestina, Monti Lepini
Zona/Frazione Camilluccia, Cortina d'Ampezzo
Quartiere Camilluccia - Farnesina
Indirizzo Via della Farnesina, Roma

Dettagli dell'abitazione

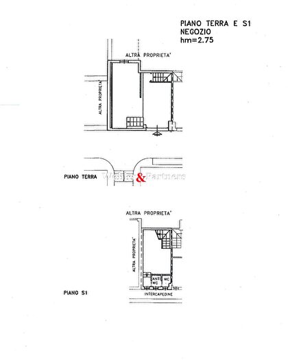
Ottima posizione nella parte più commerciale di Via della Farnesina adiacente ad altri negozi vendiamo le mura di un negozio (C/1) di circa mq. 85 con 2 ambienti e una vetrina fronte strada - antib...

Calcolatrice di Mutuo Ipotecario

%