Appartamento trilocale in vendita in Via Casalegno - Vigolzone Via Casalegno, Vigolzone

59.000 €

  • 72 m²
  • 1 bagno
  • 3 locali

Informazioni e dettagli

Stato In vendita
Tipo di abitazione Appartamento
Prezzo 59.000 €
Area 72 m²
Prezzo al m² 819,44 €/m²
Locali 3
Bagni 1
Paese Italia
Area Val d'Arda
Zona/Frazione Centro
Indirizzo Via Casalegno, Vigolzone

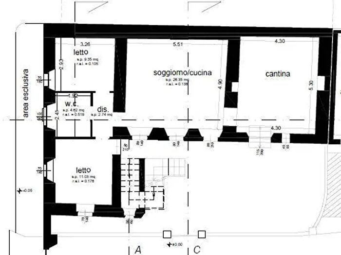
Dettagli dell'abitazione

VIGOLZONE - in palazzina di tre unità APP. TO PIANO TERRA AL RUSTICO, composto da soggiorno, angolo cottura, 2 camere da letto, bagno, cantina. Possibilità box. Per qualsiasi ulteriore informazione...

Calcolatrice di Mutuo Ipotecario

%