Appartamento in vendita in Roma Roma

640.000 €


Informazioni e dettagli

Stato In vendita
Tipo di abitazione Appartamento
Prezzo 640.000 €
Paese Italia
Area Tiburtino, Valle Sublacense
Zona/Frazione Bologna, Policlinico
Quartiere Bologna
Indirizzo Roma

Caratteristiche principali

  • Cucina
  • Giardino
  • Ripostiglio

Dettagli dell'abitazione

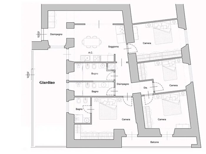
Via Reggio Calabria: all'interno di un contesto silenzioso e riservato, proponiamo la vendita di un appartamento con doppio ingresso di cui uno indipendente con passaggio dal giardino pavimentato p...

Calcolatrice di Mutuo Ipotecario

%