Appartamento in vendita in Morbidina Carpi - Carpi Morbidina Carpi, Carpi

500.000 €

  • 135 m²
  • 2 bagni

Informazioni e dettagli

Stato In vendita
Tipo di abitazione Appartamento
Prezzo 500.000 €
Area 135 m²
Prezzo al m² 3.703,70 €/m²
Bagni 2
Paese Italia
Area Modena sud, Appennino Modenese
Zona/Frazione Stadio, Acquedotto, Morbidina, Quartirolo
Quartiere Morbidina - Cuneo
Indirizzo Morbidina Carpi, Carpi

Caratteristiche principali

  • Ascensor
  • Cucina
  • Energetico
  • Parquet
  • Posto auto

Dettagli dell'abitazione

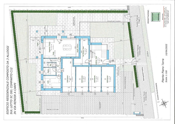
RIF 3311 CARPI IN ZONA MORBIDINA Sorgerà una palazzina di solo tre unità abitative con ascensore circondata da ampi spazi verdi e piste ciclabili . la soluzione è un attico al secondo e ultimo pian...

Calcolatrice di Mutuo Ipotecario

%