Appartamento in vendita in Morbidina Carpi - Carpi Morbidina Carpi, Carpi

340.000 €

  • 97 m²
  • 2 bagni

Informazioni e dettagli

Stato In vendita
Tipo di abitazione Appartamento
Prezzo 340.000 €
Area 97 m²
Prezzo al m² 3.505,15 €/m²
Bagni 2
Paese Italia
Area Modena sud, Appennino Modenese
Zona/Frazione Stadio, Acquedotto, Morbidina, Quartirolo
Quartiere Morbidina - Cuneo
Indirizzo Morbidina Carpi, Carpi

Caratteristiche principali

  • Ascensor
  • Cucina
  • Parquet

Dettagli dell'abitazione

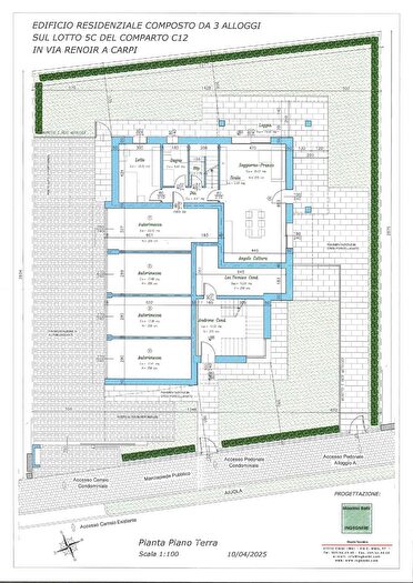
Rif 3309 ZONA MORBIDINA In quartiere residenziale partirà un nuovo intervento in palazzina di solo tre unità . Appartamento al Primo piano con ascensore composto da: ingresso soggiorno con cucina a...

Calcolatrice di Mutuo Ipotecario

%