Appartamento bilocale in vendita in Via Catone - Roma Via Catone, Roma

475.000 €

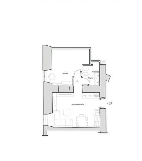
  • 50 m²
  • 1 bagno
  • 2 locali

Informazioni e dettagli

Stato Annunciato in precedenza
Tipo di abitazione Appartamento
Prezzo 475.000 €
Area 50 m²
Prezzo al m² 9.500,00 €/m²
Locali 2
Bagni 1
Paese Italia
Area Litorale nord, Bracciano
Zona/Frazione Prati, Borgo, Mazzini, Delle Vittorie
Quartiere Prati
Indirizzo Via Catone, Roma

Caratteristiche principali

  • Ascensor
  • Ristrutturato

Dettagli dell'abitazione

VIA CATONE - A pochi passi da Via Cola di Rienzo, in una delle zone più prestigiose e richieste di Roma, proponiamo in esclusiva un raffinato bilocale completamente ristrutturato, situato al second...

Calcolatrice di Mutuo Ipotecario

%