Casa trilocale in vendita in Via Simeana - Francavilla Fontana Via Simeana, Francavilla Fontana

164.000 €

  • 120 m²
  • 1 bagno
  • 3 locali

Informazioni e dettagli

Stato Annunciato in precedenza
Tipo di abitazione Casa
Prezzo 164.000 €
Area 120 m²
Prezzo al m² 1.366,66 €/m²
Locali 3
Bagni 1
Paese Italia
Area Primitivo Brindisino
Indirizzo Via Simeana, Francavilla Fontana

Caratteristiche principali

  • Caminetto
  • Energetico
  • Nuova costruzione

Dettagli dell'abitazione

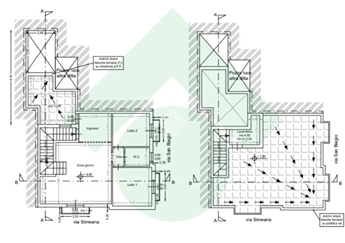
NUOVA COSTRUZIONE AD ANGOLOProponiamo in esclusiva, abitazione di nuova realizzazione, in fase di ultimazione. Con una superficie di 120 mq, questa abitazione offre un ampio open space con affaccio...

Calcolatrice di Mutuo Ipotecario

%