Casa trilocale in vendita in Rubiera Rubiera

Da consultare

  • 1802 m²
  • 4 bagni
  • 3 locali

Informazioni e dettagli

Stato In vendita
Tipo di abitazione Casa
Prezzo Da consultare
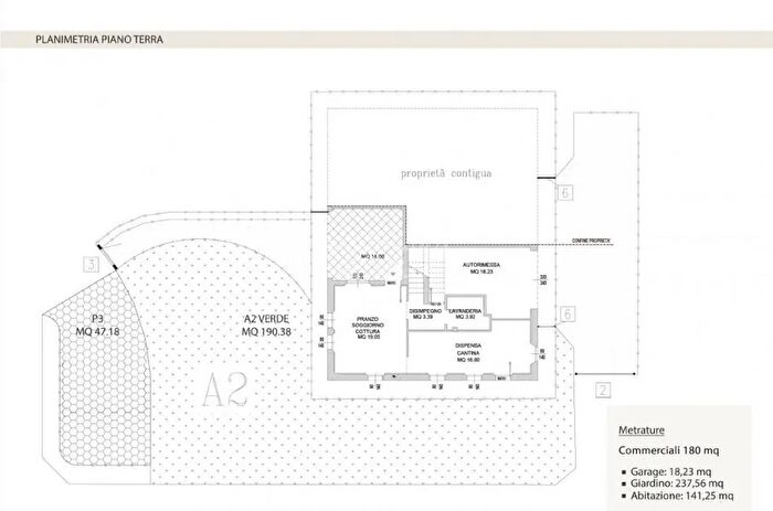
Area 1802 m²
Prezzo al m² 0,00 €/m²
Locali 3
Bagni 4
Paese Italia
Area Appennino Reggiano
Zona/Frazione Centro
Indirizzo Rubiera

Caratteristiche principali

  • Balcone
  • Cucina
  • Giardino

Dettagli dell'abitazione

Rif. 353 - In complesso residenziale di pregio immerso nelle campagne circondate da vigne proponiamo in vendita cascine finemente ristrutturate, in classe A2 come quella che illustriamo di seguito....

Calcolatrice di Mutuo Ipotecario

%