Casa quadrilocale in vendita in Sarzana Sarzana

320.000 €

  • 76 m²
  • 2 bagni
  • 4 locali

Informazioni e dettagli

Stato In vendita
Tipo di abitazione Casa
Prezzo 320.000 €
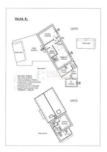
Area 76 m²
Prezzo al m² 4.210,52 €/m²
Locali 4
Bagni 2
Paese Italia
Area Val di Vara
Zona/Frazione Centro
Indirizzo Sarzana

Caratteristiche principali

  • Giardino
  • Posto auto
  • Terrazza

Dettagli dell'abitazione

Nuova proposta di Immobiliare Il Centro! Nel Comune di Sarzana in Loc. Nave, proponiamo in complesso trifamigliare in fase di completa costruzione semindipendente terratetto con giardino privato co...

Calcolatrice di Mutuo Ipotecario

%