Casa con 6 locali in vendita in Via Fiume - Chions Via Fiume, Chions

205.000 €

  • 162 m²
  • 2 bagni
  • 6 locali

Informazioni e dettagli

Stato In vendita
Tipo di abitazione Casa
Prezzo 205.000 €
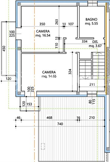
Area 162 m²
Prezzo al m² 1.265,43 €/m²
Locali 6
Bagni 2
Paese Italia
Area Alta Pianura Pordenonese
Indirizzo Via Fiume, Chions

Caratteristiche principali

  • Balcone
  • Ben collegato
  • Cucina
  • Giardino
  • Ripostiglio

Dettagli dell'abitazione

Chions (Rif: BR-340-RV) VILLETTE A SCHIERA POSSIBILITA DI PERSONALIZZAZIONE DEL PROGETTO ACQUISTABILI AL GREZZO O FINITE IN CLASSE A4 2 CAMERE 2 BAGNI AMPIE METRATURE 2 POSTI AUTO COPERTI GIARDINO...

Calcolatrice di Mutuo Ipotecario

%