Casa con 5 locali in vendita in Borghetto Di Vara Borghetto Di Vara

225.000 €

  • 370 m²
  • 5 locali

Informazioni e dettagli

Stato In vendita
Tipo di abitazione Casa
Prezzo 225.000 €
Area 370 m²
Prezzo al m² 608,10 €/m²
Locali 5
Paese Italia
Area Riviera Spezzina
Zona/Frazione Centro
Indirizzo Borghetto Di Vara

Caratteristiche principali

  • Giardino
  • Ripostiglio

Dettagli dell'abitazione

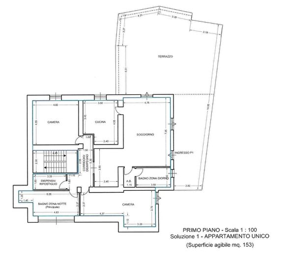
PRI1384 - BORGHETTO DI VARA - LA SPEZIA: Splendida villa al grezzo disposta su 3 livelli, a 2km dal casello autostradale di Borghetto di Vara, a mezz'ora da Forte Dei Marmi, Portofino e a 20 minuti...

Calcolatrice di Mutuo Ipotecario

%