Appartamento trilocale in vendita in Via Venezia - Schio Via Venezia, Schio

247.000 €

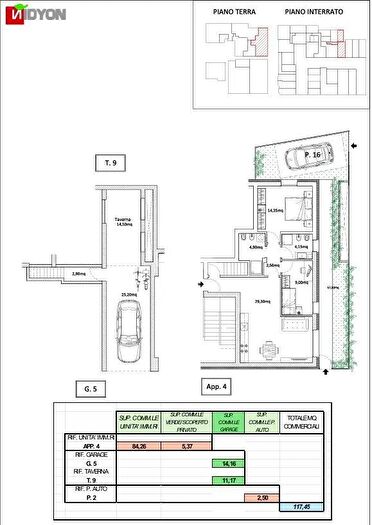
  • 117 m²
  • 2 bagni
  • 3 locali

Informazioni e dettagli

Stato Annunciato in precedenza
Tipo di abitazione Appartamento
Prezzo 247.000 €
Area 117 m²
Prezzo al m² 2.111,11 €/m²
Locali 3
Bagni 2
Paese Italia
Area Alto Vicentino
Zona/Frazione Centro
Indirizzo Via Venezia, Schio

Caratteristiche principali

  • Giardino
  • Posto auto

Dettagli dell'abitazione

APPARTAMENTO 4 Trilocale al Piano Terra con Giardino Privato, Garage e Taverna Spazioso trilocale al piano terra, perfetto per famiglie o chi desidera ampi spazi e comfort. L appartamento è compost...

Calcolatrice di Mutuo Ipotecario

%