Appartamento trilocale in vendita in Via Venezia - Schio Via Venezia, Schio

225.000 €

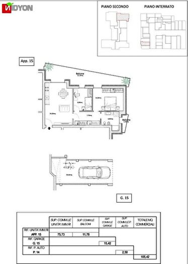
  • 105 m²
  • 1 bagno
  • 3 locali

Informazioni e dettagli

Stato Annunciato in precedenza
Tipo di abitazione Appartamento
Prezzo 225.000 €
Area 105 m²
Prezzo al m² 2.142,85 €/m²
Locali 3
Bagni 1
Paese Italia
Area Alto Vicentino
Zona/Frazione Centro
Indirizzo Via Venezia, Schio

Caratteristiche principali

  • Balcone

Dettagli dell'abitazione

APPARTAMENTO 15 Trilocale al Secondo Piano con Ampio Balcone e Garage Profondo Moderno trilocale al secondo piano, pensato per offrire comfort e vivibilità sia negli spazi interni che esterni. La z...

Calcolatrice di Mutuo Ipotecario

%