Appartamento trilocale in vendita in Via De Chirico - Grottammare Via De Chirico, Grottammare

210.000 €

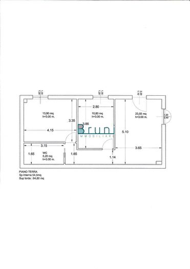
  • 65 m²
  • 1 bagno
  • 3 locali

Informazioni e dettagli

Stato In vendita
Tipo di abitazione Appartamento
Prezzo 210.000 €
Area 65 m²
Prezzo al m² 3.230,76 €/m²
Locali 3
Bagni 1
Paese Italia
Area Alta Valle del Tronto
Zona/Frazione Centro
Indirizzo Via De Chirico, Grottammare

Caratteristiche principali

  • Aria condizionata

Dettagli dell'abitazione

Agenzia Bruni Immobiliare propone: Appartamento in Vendita nelle Marche, in Provincia di Ascoli Piceno, nel comune di Grottammare, di circa 65 mq posto al piano terra con ingresso indipendente in p...

Calcolatrice di Mutuo Ipotecario

%