Appartamento trilocale in vendita in Via Borgomaneri - Binasco Via Borgomaneri, Binasco

255.000 €

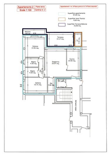
  • 100 m²
  • 2 bagni
  • 3 locali

Informazioni e dettagli

Stato Annunciato in precedenza
Tipo di abitazione Appartamento
Prezzo 255.000 €
Area 100 m²
Prezzo al m² 2.550,00 €/m²
Locali 3
Bagni 2
Paese Italia
Area Adda Milanese
Indirizzo Via Borgomaneri, Binasco

Caratteristiche principali

  • Ascensor
  • Balcone
  • Cucina
  • Energetico
  • Privati
  • Ripostiglio

Dettagli dell'abitazione

BINASCO RESIDENZA "ALTHEA"Di prossima realizzazione, splendidi appartamenti di varie metrature con ampi terrazzi e giardini. La palazzina, dotata di ascensore, si sviluppa su 3 livelli con 6 appart...

Calcolatrice di Mutuo Ipotecario

%