Appartamento quadrilocale in vendita in Via Marecchiese - Verucchio Via Marecchiese, Verucchio

355.000 €

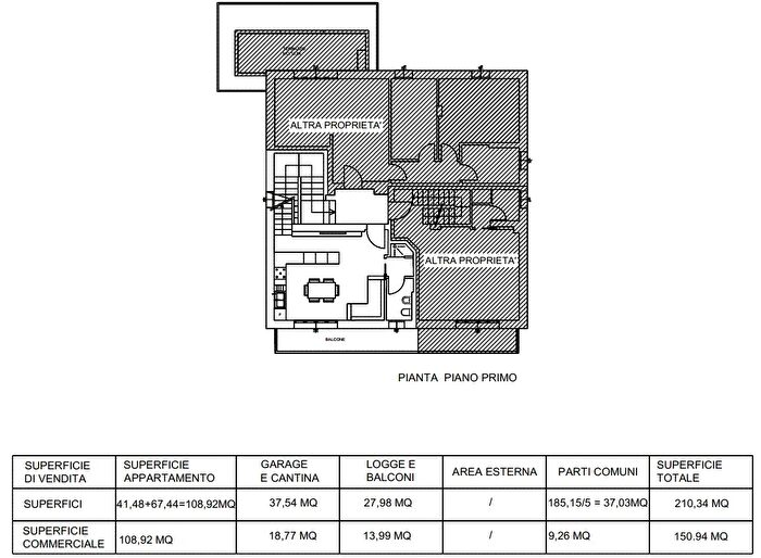
  • 151 m²
  • 2 bagni
  • 4 locali

Informazioni e dettagli

Stato Annunciato in precedenza
Tipo di abitazione Appartamento
Prezzo 355.000 €
Area 151 m²
Prezzo al m² 2.350,99 €/m²
Locali 4
Bagni 2
Paese Italia
Area Valle della Marecchia
Zona/Frazione Villa Verucchio
Indirizzo Via Marecchiese, Verucchio

Caratteristiche principali

  • Balcone
  • Energetico
  • Nuova costruzione

Dettagli dell'abitazione

CENTRO di VILLA VERUCCHIO - Immobile moderno e funzionale in consegna a fine 2025. In elegante complesso residenziale di nuova costruzione, composto da sole 5 unità abitative, proponiamo in vendita...

Calcolatrice di Mutuo Ipotecario

%