Appartamento quadrilocale in vendita in Via Camillo Benso di Cavour - San Giorgio Piacentino Via Camillo Benso di Cavour, San Giorgio Piacentino

225.000 €

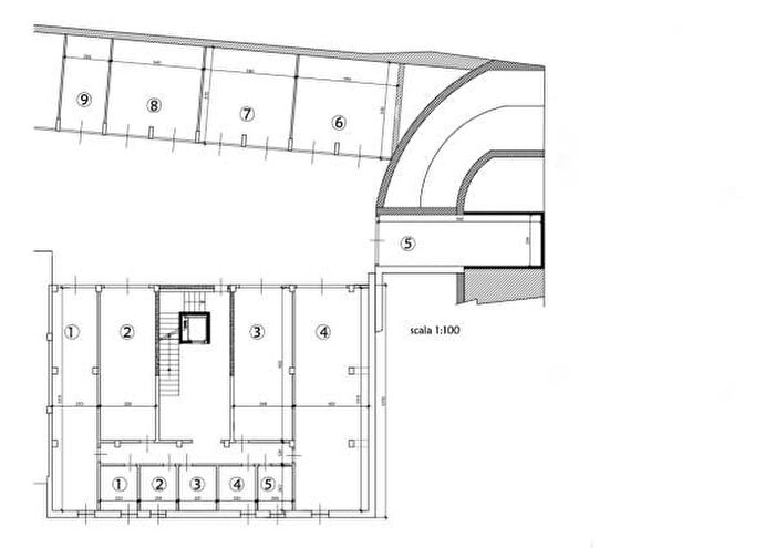
  • 104 m²
  • 2 bagni
  • 4 locali

Informazioni e dettagli

Stato Annunciato in precedenza
Tipo di abitazione Appartamento
Prezzo 225.000 €
Area 104 m²
Prezzo al m² 2.163,46 €/m²
Locali 4
Bagni 2
Paese Italia
Area Val d'Arda
Zona/Frazione Centro
Indirizzo Via Camillo Benso di Cavour, San Giorgio Piacentino

Caratteristiche principali

  • Giardino

Dettagli dell'abitazione

SAN GIORGIO - INFO IN UFFICIOUFFICIO VENDITE - AGENZIA IMMOBILIARE MILANESI GEOM. STEFANO - VIA MANFREDI 77/A PIACENZA (PC)Soluzioni abitative di nuova riqualificazione in classe A4, realizzate con...

Calcolatrice di Mutuo Ipotecario

%