Appartamento bilocale in vendita in Via Rovo - Cadegliano Viconago Via Rovo, Cadegliano Viconago

245.000 €

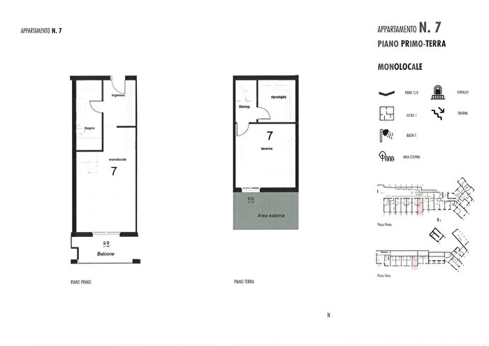
  • 83 m²
  • 1 bagno
  • 2 locali

Informazioni e dettagli

Stato In vendita
Tipo di abitazione Appartamento
Prezzo 245.000 €
Area 83 m²
Prezzo al m² 2.951,80 €/m²
Locali 2
Bagni 1
Paese Italia
Area Cittigliese
Zona/Frazione Centro
Indirizzo Via Rovo, Cadegliano Viconago

Caratteristiche principali

  • Nuova costruzione
  • Palestra
  • Piscina
  • Privati

Dettagli dell'abitazione

Cadegliano Viconago (VA)A pochi minuti dal confine con la Svizzera, CRES propone nelle immediate vicinanze di Lavena Ponte Tresa, varie tipologie di appartamenti di nuova costruzione in classe A, d...

Calcolatrice di Mutuo Ipotecario

%