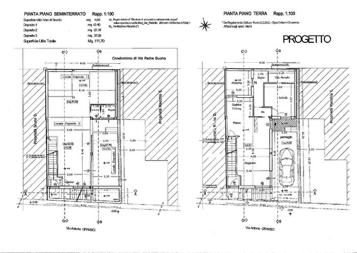
Casa in vendita in Via Antonio Gramsci a - Adelfia Via Antonio Gramsci a, Adelfia

49.000 €

  • 150 m²

Informazioni e dettagli

Stato In vendita
Tipo di abitazione Casa
Prezzo 49.000 €
Area 150 m²
Prezzo al m² 326,66 €/m²
Paese Italia
Indirizzo Via Antonio Gramsci a, Adelfia

Dettagli dell'abitazione

Rif: CS49 - Questa soluzione è ottima se hai sempre sognato di realizzare un ottimo investimento! Il suolo edificabile CON PROGETTO APPROVATO si trova a Canneto in una zona centralissima e servita...

Calcolatrice di Mutuo Ipotecario

%