Casa quadrilocale in vendita in Castellana - Venezia Castellana, Venezia

480.000 €

  • 160 m²
  • 2 bagni
  • 4 locali

Informazioni e dettagli

Stato In vendita
Tipo di abitazione Casa
Prezzo 480.000 €
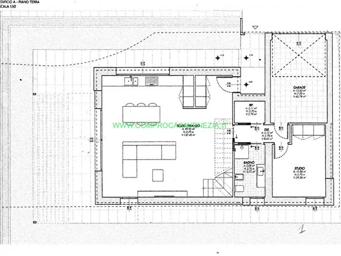
Area 160 m²
Prezzo al m² 3.000,00 €/m²
Locali 4
Bagni 2
Paese Italia
Area Venezia
Zona/Frazione Villaggio dei Fiori
Quartiere Trivignano - Gatta
Indirizzo Castellana, Venezia

Dettagli dell'abitazione

TRIVIGNANO. PROPONIAMO la possibilità di acquisire su carta, villetta in via di costruzione su lotto da 1500mq. In stretta vicinanza alla viabilità principale e ad i suoi servizi, ma senza subirne...

Calcolatrice di Mutuo Ipotecario

%