Casa quadrilocale in vendita in Carpi Carpi

320.000 €

  • 132 m²
  • 2 bagni
  • 4 locali

Informazioni e dettagli

Stato In vendita
Tipo di abitazione Casa
Prezzo 320.000 €
Area 132 m²
Prezzo al m² 2.424,24 €/m²
Locali 4
Bagni 2
Paese Italia
Area Valmarecchia
Indirizzo Carpi

Dettagli dell'abitazione

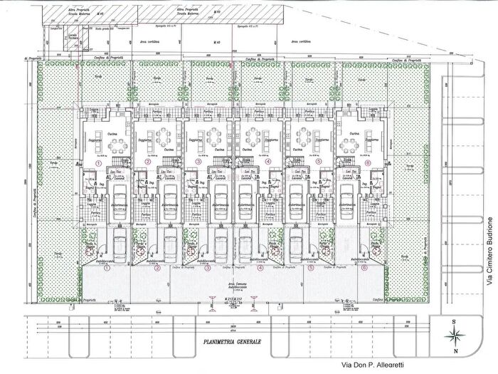
RIF. 2924 B BUDRIONE VILLETTE NUOVE COSTRUZIONIUltime tre, la 3, 4 e 5Nuove villette a schiera comfort, eleganza e spazi personalizzabiliBudrione, proponiamo in vendita nuove villette a schiera pro...

Calcolatrice di Mutuo Ipotecario

%