Casa con 5 locali in vendita in Via San Felice - San Vendemiano Via San Felice, San Vendemiano

390.000 €

  • 175 m²
  • 3 bagni
  • 5 locali

Informazioni e dettagli

Stato In vendita
Tipo di abitazione Casa
Prezzo 390.000 €
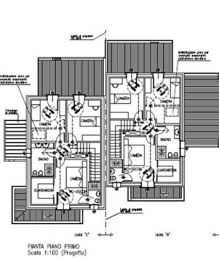
Area 175 m²
Prezzo al m² 2.228,57 €/m²
Locali 5
Bagni 3
Paese Italia
Area Area Vittorio Veneto
Indirizzo Via San Felice, San Vendemiano

Caratteristiche principali

  • Ascensor
  • Cucina
  • Giardino
  • Posto auto
  • Ripostiglio

Dettagli dell'abitazione

Saccon di san Vendemianodi prossimo realizzo, porzione di tri famigliare in classe a/4 consegna fine 2025. Zona tranquilla, non isolata, a pochi minuti da tutti i servizi primari. Di 175 mq commerc...

Calcolatrice di Mutuo Ipotecario

%