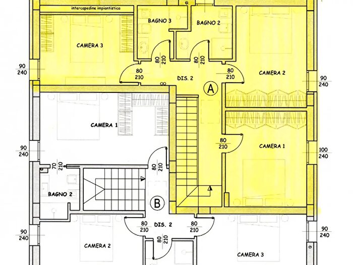
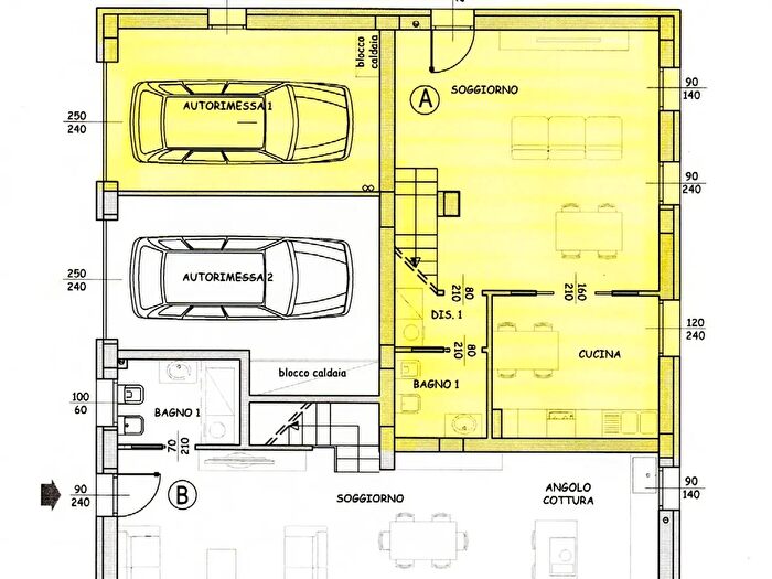
Casa con 5 locali in vendita in Via Ernesto E Fioravante Alvisi - Anzola DellEmilia Via Ernesto E Fioravante Alvisi, Anzola DellEmilia

510.000 €

  • 149 m²
  • 3 bagni
  • 5 locali

Informazioni e dettagli

Stato In vendita
Tipo di abitazione Casa
Prezzo 510.000 €
Area 149 m²
Prezzo al m² 3.422,81 €/m²
Locali 5
Bagni 3
Paese Italia
Area Circondario Imolese
Indirizzo Via Ernesto E Fioravante Alvisi, Anzola DellEmilia

Caratteristiche principali

  • Cucina
  • Giardino

Dettagli dell'abitazione

Anzola Emilia nella campagna a 2 km dal paese, bellissima ed ampia porzione di villa bifamiliare in costruzione ad alta efficienza energetica con riscaldamento autonomo a pavimento, isolamento term...

Calcolatrice di Mutuo Ipotecario

%