Appartamento trilocale in vendita in Viale Palmiro Togliatti - Andria Viale Palmiro Togliatti, Andria

255.000 €

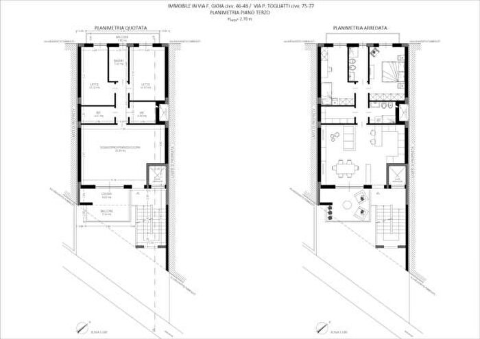
  • 94 m²
  • 2 bagni
  • 3 locali

Informazioni e dettagli

Stato Annunciato in precedenza
Tipo di abitazione Appartamento
Prezzo 255.000 €
Area 94 m²
Prezzo al m² 2.712,76 €/m²
Locali 3
Bagni 2
Paese Italia
Area Andria
Zona/Frazione Sacro Cuore, Tangenziale, Via Bisceglie
Quartiere Sacro Cuore - Via Corato
Indirizzo Viale Palmiro Togliatti, Andria

Caratteristiche principali

  • Nuova costruzione

Dettagli dell'abitazione

In Zona Via Corato, esattamente in Via Palmiro Togliatti / Via Flavio Gioia, proponiamo in vendita esclusiva degli appartamenti di nuova costruzione in Classe Energetica ''A++''.Il fabbricato, con...

Calcolatrice di Mutuo Ipotecario

%