Appartamento trilocale in vendita in Viale Mestre - Riccione Viale Mestre, Riccione

265.000 €

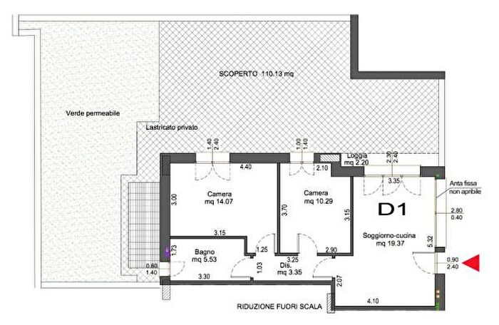
  • 88 m²
  • 1 bagno
  • 3 locali

Informazioni e dettagli

Stato In vendita
Tipo di abitazione Appartamento
Prezzo 265.000 €
Area 88 m²
Prezzo al m² 3.011,36 €/m²
Locali 3
Bagni 1
Paese Italia
Area Valle della Marecchia
Zona/Frazione San Lorenzo
Quartiere San Lorenzo Monte
Indirizzo Viale Mestre, Riccione

Caratteristiche principali

  • Allarme
  • Aria condizionata
  • Giardino

Dettagli dell'abitazione

Appartamento in Vendita: Splendida soluzione a breve distanza da Riccione. Situato in una piccola palazzina all'interno di un tranquillo condominio, questo appartamento al piano terra offre tutto i...

Calcolatrice di Mutuo Ipotecario

%