Appartamento trilocale in vendita in Via Ponte del Giuscano - Milano Via Ponte del Giuscano, Milano

331.000 €

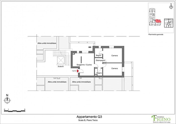
  • 95 m²
  • 2 bagni
  • 3 locali

Informazioni e dettagli

Stato Annunciato in precedenza
Tipo di abitazione Appartamento
Prezzo 331.000 €
Area 95 m²
Prezzo al m² 3.484,21 €/m²
Locali 3
Bagni 2
Paese Italia
Area Magentino
Zona/Frazione San Siro, Trenno
Quartiere Figino
Indirizzo Via Ponte del Giuscano, Milano

Caratteristiche principali

  • Cucina
  • Vasca

Dettagli dell'abitazione

Situato all'interno della prestigiosa Residenza Figino, l'appartamento Q3, al terzo piano della scala B, offre spazi ampi, finiture di pregio e un'ottima efficienza energetica. L'ingresso si apre s...

Calcolatrice di Mutuo Ipotecario

%