Appartamento trilocale in vendita in Via Martiri delle Fosse Reatine Rieti Rieti - Rieti Via Martiri delle Fosse Reatine Rieti Rieti, Rieti

77.000 €

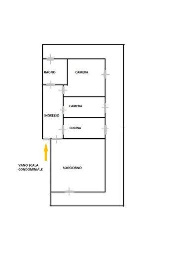
  • 98 m²
  • 1 bagno
  • 3 locali

Informazioni e dettagli

Stato In vendita
Tipo di abitazione Appartamento
Prezzo 77.000 €
Area 98 m²
Prezzo al m² 785,71 €/m²
Locali 3
Bagni 1
Paese Italia
Area Turano
Indirizzo Via Martiri delle Fosse Reatine Rieti Rieti, Rieti

Caratteristiche principali

  • Balcone

Dettagli dell'abitazione

Rieti zona Quattro Strade, NUDA PROPRIETA in posizione strategica nelle immediate vicinanze di tutti i servizi principali e più precisamente in via Martiri Delle Fosse Reatine proponiamo in vendita...

Calcolatrice di Mutuo Ipotecario

%