Appartamento trilocale in vendita in Via Bari - Casamassima Via Bari, Casamassima

264.270 €

  • 114 m²
  • 2 bagni
  • 3 locali

Informazioni e dettagli

Stato In vendita
Tipo di abitazione Appartamento
Prezzo 264.270 €
Area 114 m²
Prezzo al m² 2.318,15 €/m²
Locali 3
Bagni 2
Paese Italia
Indirizzo Via Bari, Casamassima

Caratteristiche principali

  • Allarme
  • Balcone
  • Energetico
  • Posto auto

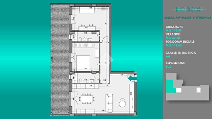
Dettagli dell'abitazione

Appartamento primo piano, scala A, 3 vani di circa 101,80 mq+ 39,20 mq est., composto da: salone con angolo cottura, disimpegno, camera da letto, cameretta e due bagni. Esposizione su ampio balcone...

Calcolatrice di Mutuo Ipotecario

%