Appartamento trilocale in vendita in Firenze Firenze

385.000 €

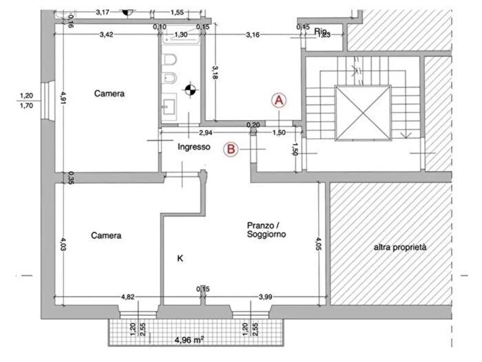
  • 75 m²
  • 1 bagno
  • 3 locali

Informazioni e dettagli

Stato Annunciato in precedenza
Tipo di abitazione Appartamento
Prezzo 385.000 €
Area 75 m²
Prezzo al m² 5.133,33 €/m²
Locali 3
Bagni 1
Paese Italia
Area Firenze
Zona/Frazione Canonica - Capoluogo - Montebello
Quartiere Coverciano
Indirizzo Firenze

Caratteristiche principali

  • Ristrutturato

Dettagli dell'abitazione

PIAZZA ANTONELLI TRILOCALE RISTRUTTURATO CON AFFACCIO PANORAMICOIn una delle zone più eleganti e ricercate di Firenze, proponiamo in vendita trilocale di circa 75 mq con splendido affaccio su Piazz...

Calcolatrice di Mutuo Ipotecario

%