Appartamento trilocale in vendita in Senigallia Senigallia

130.000 €

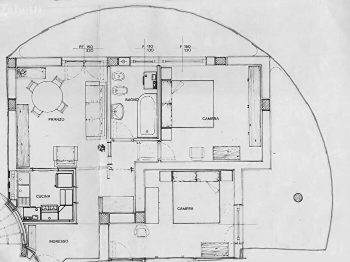
  • 75 m²
  • 1 bagno
  • 3 locali

Informazioni e dettagli

Stato Annunciato in precedenza
Tipo di abitazione Appartamento
Prezzo 130.000 €
Area 75 m²
Prezzo al m² 1.733,33 €/m²
Locali 3
Bagni 1
Paese Italia
Area Terra dei Castelli, Riviera del Conero
Zona/Frazione Marzocca
Indirizzo Senigallia

Dettagli dell'abitazione

APPARTAMENTO A MARZOCCA: Affacciato sul mare, mq. 75 (soggiorno, cucinotto, 2 camere, bagno, ripostigio) + n. 2 terrazzi panoramici e mq. 22 garage

Calcolatrice di Mutuo Ipotecario

%