Appartamento quadrilocale in vendita in Rovereto Rovereto

235.000 €

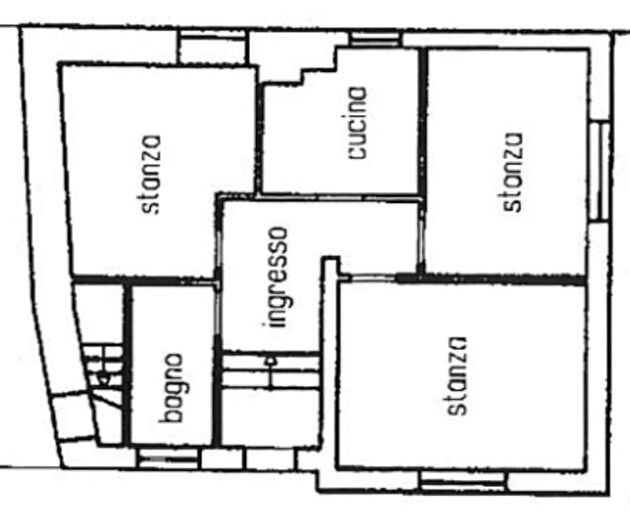
  • 79 m²
  • 1 bagno
  • 4 locali

Informazioni e dettagli

Stato In vendita
Tipo di abitazione Appartamento
Prezzo 235.000 €
Area 79 m²
Prezzo al m² 2.974,68 €/m²
Locali 4
Bagni 1
Paese Italia
Area Bassa Valsugana
Zona/Frazione Centro Sud
Indirizzo Rovereto

Caratteristiche principali

  • Cucina
  • Posto auto
  • Ristrutturato

Dettagli dell'abitazione

In zona centrale e servita, a pochi passi dal centro storico di Rovereto, proponiamo in vendita un appartamento di 79 mq, situato al piano rialzato di uno stabile tranquillo e ben tenuto. L'immobil...

Calcolatrice di Mutuo Ipotecario

%