Appartamento con 10 locali in vendita in Principessa di Piemonte Anglo Via IV Novembre - Scordia Principessa di Piemonte Anglo Via IV Novembre, Scordia

350.000 €

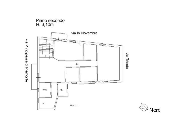
  • 429 m²
  • 5 bagni
  • 10 locali

Informazioni e dettagli

Stato In vendita
Tipo di abitazione Appartamento
Prezzo 350.000 €
Area 429 m²
Prezzo al m² 815,85 €/m²
Locali 10
Bagni 5
Paese Italia
Area Parco dell'Etna
Zona/Frazione San Giovanni-Tupparello
Indirizzo Principessa di Piemonte Anglo Via IV Novembre, Scordia

Dettagli dell'abitazione

Posizione strategica: L'immobile si trova all'incrocio di quattro strade principali, precisamente Via Principessa di Piemonte, Via Trieste, Via del Concordato e Via 4 Novembre, in una zona centrale...

Calcolatrice di Mutuo Ipotecario

%