Casa con 6 locali in vendita in Via Hermada - Soria - Pesaro Via Hermada, Soria, Pesaro

330.000 €

  • 145 m²
  • 2 bagni
  • 6 locali

Informazioni e dettagli

Stato Annunciato in precedenza
Tipo di abitazione Casa
Prezzo 330.000 €
Area 145 m²
Prezzo al m² 2.275,86 €/m²
Locali 6
Bagni 2
Paese Italia
Area Urbino, Alto Metauro
Zona/Frazione Soria, Tombaccia
Quartiere Soria
Indirizzo Via Hermada, Soria, Pesaro

Caratteristiche principali

  • Allarme
  • Aria condizionata
  • Ascensor
  • Ascensore
  • Cucina
  • Duplex

Dettagli dell'abitazione

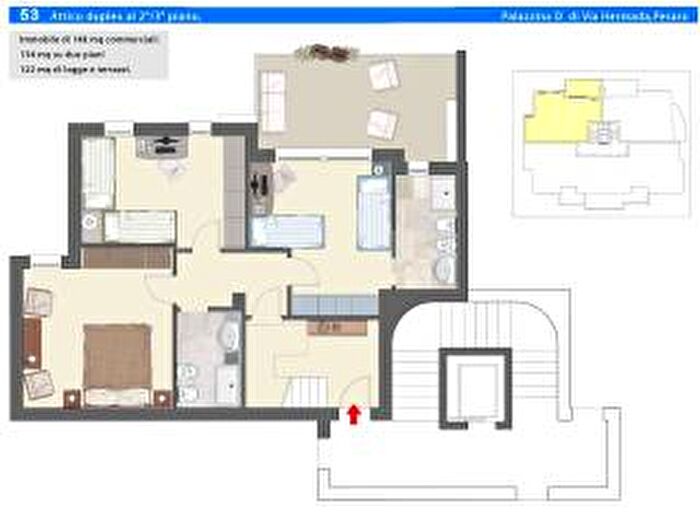
Attico duplex al 2°/3° piano disponibile nella Palazzina D. Immobile di 145 mq commerciali: di oltre 137 mq su due piani oltre 123 mq di logge e terrazzi. Composto al 2° piano da ingresso, soggiorn...

Calcolatrice di Mutuo Ipotecario

%