Casa con 6 locali in vendita in Cesena Cesena

515.000 €

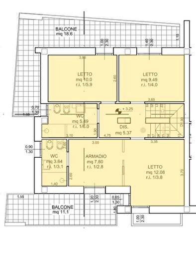
  • 220 m²
  • 3 bagni
  • 6 locali

Informazioni e dettagli

Stato In vendita
Tipo di abitazione Casa
Prezzo 515.000 €
Area 220 m²
Prezzo al m² 2.340,90 €/m²
Locali 6
Bagni 3
Paese Italia
Area Appennino Cesenate, Rubicone Alto
Zona/Frazione Stadio, La Fiorita, Ospedale, Case Finali
Quartiere Ospedale - Case Finali
Indirizzo Cesena

Caratteristiche principali

  • Cucina
  • Giardino
  • Posto auto
  • Privati

Dettagli dell'abitazione

CESENA, a Case Finali adiacente alla valle di Rio Marano, si vende una villa bifamiliare in costruzione. Il progetto di bifamiliare prevede la seguente soluzione disposta su più livelli: al piano t...

Calcolatrice di Mutuo Ipotecario

%