Casa con 5 locali in vendita in Orfengo Casalino Novara Piemonte Italia - Casalino Orfengo Casalino Novara Piemonte Italia, Casalino

98.000 €

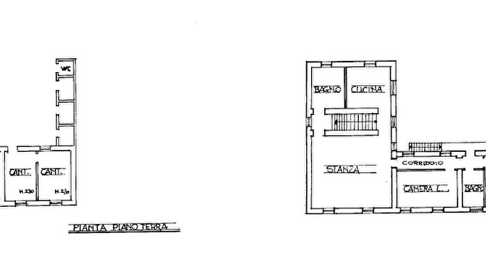
  • 200 m²
  • 2 bagni
  • 5 locali

Informazioni e dettagli

Stato In vendita
Tipo di abitazione Casa
Prezzo 98.000 €
Area 200 m²
Prezzo al m² 490,00 €/m²
Locali 5
Bagni 2
Paese Italia
Area Borgomanero, Valli Novaresi
Zona/Frazione Orfengo
Indirizzo Orfengo Casalino Novara Piemonte Italia, Casalino

Caratteristiche principali

  • Cucina
  • Giardino
  • Ripostiglio

Dettagli dell'abitazione

ORFENGO 98.000 in zona tranquilla, nel verde della campagna novarese, proponiamo una CASA INDIPENDENTE con GIARDINO, cosi composta. Al piano terra, da locali di pertinenza dell alloggio primario, e...

Calcolatrice di Mutuo Ipotecario

%