Casa con 12 locali in vendita in Fano - Fano Fano, Fano

499.000 €

  • 270 m²
  • 2 bagni
  • 12 locali

Informazioni e dettagli

Stato Annunciato in precedenza
Tipo di abitazione Casa
Prezzo 499.000 €
Area 270 m²
Prezzo al m² 1.848,14 €/m²
Locali 12
Bagni 2
Paese Italia
Area Montefeltro
Zona/Frazione Centinarola, Rosciano
Quartiere Rosciano
Indirizzo Fano, Fano

Caratteristiche principali

  • Cucina

Dettagli dell'abitazione

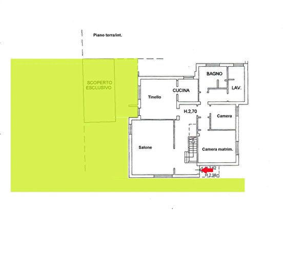
Fano in zona Flaminio, bella casa bifamigliare composta da due appartamenti indipendenti di circa 135mq ciascuno posti uno al piano rialzato e l'altro al piano terra composti da: sala, cucina, tre...

Calcolatrice di Mutuo Ipotecario

%