Appartamento con 7 locali in vendita in Via Giovanni Boccaccio - Milano Via Giovanni Boccaccio, Milano

1.650.000 €

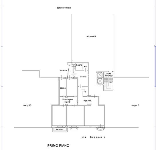
  • 160 m²
  • 7 locali

Informazioni e dettagli

Stato In vendita
Tipo di abitazione Appartamento
Prezzo 1.650.000 €
Area 160 m²
Locali 7
Paese Italia
Zona/Frazione San Pietro-Pace
Quartiere Vincenzo Monti
Indirizzo Via Giovanni Boccaccio, Milano

Caratteristiche principali

  • Ascensor
  • Cucina
  • Posto auto

Dettagli dell'abitazione

MILANO, quartiere Magenta, 5 locali, vicino stazione Cadorna, in stabile d'epoca e signorile, 1° piano con ascensore, da ristrutturare, composto da 3 camere, salone, cucina abitabile, 2 bagni, balc...

Calcolatrice di Mutuo Ipotecario

%