Appartamento con 5 locali in vendita in Via Fano - Ancona Via Fano, Ancona

45.000 €

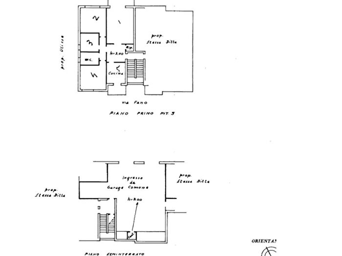
  • 117 m²
  • 5 locali

Informazioni e dettagli

Stato Annunciato in precedenza
Tipo di abitazione Appartamento
Prezzo 45.000 €
Area 117 m²
Prezzo al m² 384,61 €/m²
Locali 5
Paese Italia
Zona/Frazione Borgo - Liceo
Quartiere Le Grazie
Indirizzo Via Fano, Ancona

Caratteristiche principali

  • Balcone
  • Cucina
  • Posto auto
  • Ripostiglio

Dettagli dell'abitazione

GRAZIE - Proponiamo in vendita ampio appartamento di 117 mq. sito al piano rialzato in una palazzina in buone condizioni non lontana dai principali servizi e allo stesso tempo in zona tranquilla e...

Calcolatrice di Mutuo Ipotecario

%