Appartamento trilocale in vendita in Via Goffredo Venanzini - Pesaro Via Goffredo Venanzini, Pesaro

273.000 €

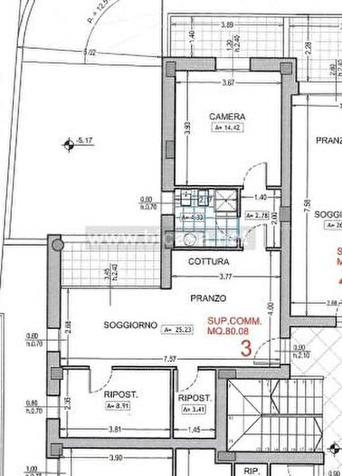
  • 80 m²
  • 1 bagno
  • 3 locali

Informazioni e dettagli

Stato Annunciato in precedenza
Tipo di abitazione Appartamento
Prezzo 273.000 €
Area 80 m²
Prezzo al m² 3.412,50 €/m²
Locali 3
Bagni 1
Paese Italia
Area Catria, Nerone, Alto Cesano
Zona/Frazione Montegranaro, Loreto, Muraglia
Quartiere Montegranaro - Loreto
Indirizzo Via Goffredo Venanzini, Pesaro

Caratteristiche principali

  • Balcone
  • Cucina
  • Nuova costruzione
  • Ripostiglio

Dettagli dell'abitazione

MARE: a pochi passi dalla spiaggia, con vista sul mare in direzione levante e a cinque minuti a piedi dal centro, vendesi appartamento di nuova costruzione in categoria energetica n-ZEB, caratteris...

Calcolatrice di Mutuo Ipotecario

%