Appartamento trilocale in vendita in Siena Si - Siena Siena Si, Siena

300.000 €

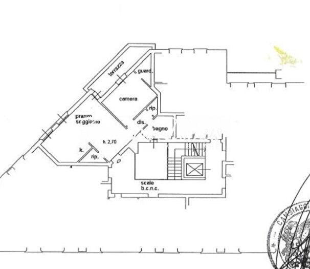
  • 70 m²
  • 1 bagno
  • 3 locali

Informazioni e dettagli

Stato In vendita
Tipo di abitazione Appartamento
Prezzo 300.000 €
Area 70 m²
Prezzo al m² 4.285,71 €/m²
Locali 3
Bagni 1
Paese Italia
Zona/Frazione Centro
Quartiere Ravacciano
Indirizzo Siena Si, Siena

Caratteristiche principali

  • Ascensor
  • Cucina

Dettagli dell'abitazione

Cod. 11170 Rif. Ag. v1089 - RavaccianoScoprite questo splendido appartamento in vendita a Siena, un'opportunità unica per vivere nel cuore di una delle città più affascinanti d'Italia. Con una supe...

Calcolatrice di Mutuo Ipotecario

%