Appartamento monolocale in vendita in Scala Bonetti - San Marino Scala Bonetti, San Marino

175.000 €

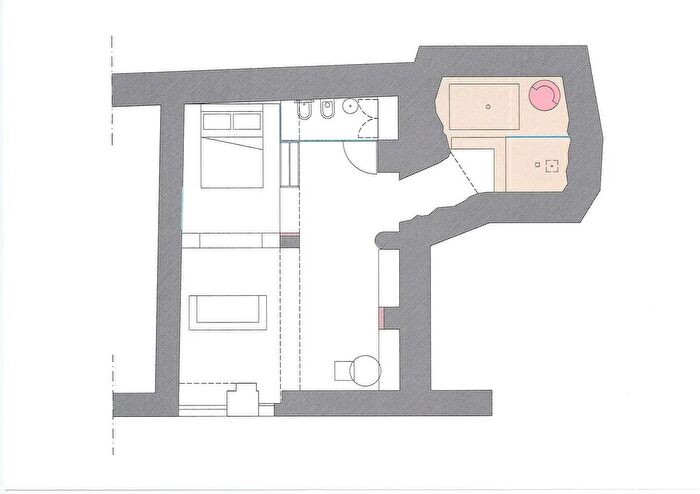
  • 48 m²
  • 1 bagno
  • 1 locali

Informazioni e dettagli

Stato In vendita
Tipo di abitazione Appartamento
Prezzo 175.000 €
Area 48 m²
Prezzo al m² 3.645,83 €/m²
Locali 1
Bagni 1
Paese Italia
Area Valmarecchia
Indirizzo Scala Bonetti, San Marino

Dettagli dell'abitazione

Centro Storico- Nel cuore del centro storico di San Marino, si trova un accogliente negozio di 48 mq, caratterizzato da un ambiente luminoso e ben distribuito. La posizione strategica, a pochi pass...

Calcolatrice di Mutuo Ipotecario

%