Appartamento bilocale in vendita in Treviso Via Roggia - Treviso Treviso Via Roggia, Treviso

320.000 €

  • 80 m²
  • 2 bagni
  • 2 locali

Informazioni e dettagli

Stato In vendita
Tipo di abitazione Appartamento
Prezzo 320.000 €
Area 80 m²
Prezzo al m² 4.000,00 €/m²
Locali 2
Bagni 2
Paese Italia
Zona/Frazione Sud
Indirizzo Treviso Via Roggia, Treviso

Caratteristiche principali

  • Cucina
  • Ristrutturato

Dettagli dell'abitazione

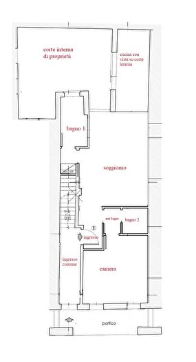
Treviso zona via Roggiavendesi mini Appartamento di comode dimensioni mq 70, al Piano terra di un palazzetto di pregio storico ristrutturato, con corte interna privata di mq 24, composto di: ingres...

Calcolatrice di Mutuo Ipotecario

%