Appartamento con 5 locali in vendita in Zona Residenziale Tranquilla - Castel DAzzano Zona Residenziale Tranquilla, Castel DAzzano

360.000 €

  • 115 m²
  • 2 bagni
  • 5 locali

Informazioni e dettagli

Stato In vendita
Tipo di abitazione Appartamento
Prezzo 360.000 €
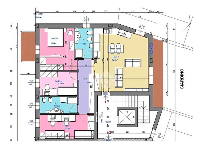
Area 115 m²
Prezzo al m² 3.130,43 €/m²
Locali 5
Bagni 2
Paese Italia
Area Lessinia
Zona/Frazione Beccacivetta Azzano
Quartiere Sacra Famiglia - Castel D'Azzano
Indirizzo Zona Residenziale Tranquilla, Castel DAzzano

Caratteristiche principali

  • Ascensor
  • Giardino
  • Nuova costruzione

Dettagli dell'abitazione

Nel comune di Castel d'Azzano, proponiamo in vendita un immobile di nuova costruzione, situato al piano terra in una piccola palazzina dotata di ascensore. L'appartamento, di 115 mq, offre un'ampia...

Calcolatrice di Mutuo Ipotecario

%