Appartamento in affitto in Varese Varese

1.100 €


Informazioni e dettagli

Stato Affitto
Tipo di abitazione Appartamento
Prezzo 1.100 €
Paese Italia
Zona/Frazione Crenna-Azalee
Quartiere Centro
Indirizzo Varese

Caratteristiche principali

  • Aria condizionata
  • Ascensor
  • Cucina

Dettagli dell'abitazione

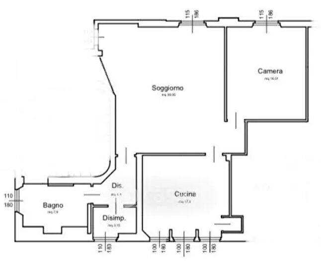
ESCLUSIVO BILOCALE PANORAMICO IN AFFITTO PIAZZA MONTE GRAPPA, VARESENel cuore di Varese, in Piazza Monte Grappa, proponiamo in affitto un prestigioso bilocale di 120 mq situato al settimo piano, co...